Haberler
Etkinlikler
Yarışmalar
Kentin Tozu
Çat Kapı
İlk Yapı
Karanlık Oda
İş Dışı
Mimarın Göbeği
Projeler
Etkinlikler
Yarışmalar
En Çok Okunanlar
Etkinlikler
Salt Araştırma Fonları 2025 Sunumları
Haberler
Kentsel Tasarım: Kuram, Uygulama, Eğitim
Haberler
YALIN ŞEYLER – Ömer Selçuk Baz, Okan Bal, Yalın Mimarlık...
Projeler
K-LAND İç Mekân & Kiosk Tasarım
Projeler
Kocaeli Milli İrade Meydanı
»
Yarışmalar
»
Yarışma Sonuçları
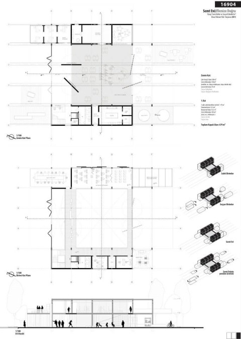
2013 Ytong Ulusal Mimari Fikir Yarışması Sonuçlandı
mimarizm.com /
24 Temmuz 2013
Mansiyon (16904 rumuzlu proje)
<<
<
3
4
5
6
7
>
>>
İlişkili Haberler
2013 Ytong Ulusal Mimari Fikir Yarışması
Ytong Yarışmasında Ödüller Sahiplerini Buldu
2014 Ytong Mimari Fikir Yarışması Sonuçlandı
Bu Haberi Sosyal Medyada Paylaşın
Tweet
E-Posta Gönder
Yorumlar
Henüz yorum yapılmamış.
Bu İçeriğe Yorum Yazın
Ad Soyad
E-posta
Yorum
Kalan karakter :
Bilgilerim
Çıkış
Yeni Üye
|
Üye Girişi
Künye
Gölgede Kalan | Aykut KÖKSAL
Sevim Burak'tan Turgut Cansever'e
Öncü Bir Kuramcı: Camillo Sitte
Akademili Bir Mimar: Adnan Kazmaoğlu
Tüm yazıları göster